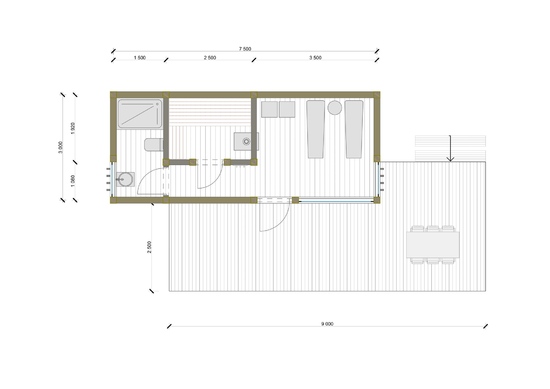
Сегмент Баня Modul.ФБ.25
Баня состоит из 1 модуля
тип конструкции Фахверк
Материал конструкций ТермоДерево
тип конструкции Фахверк
Материал конструкций ТермоДерево
Производитель: SegmentDom
1 825 000 руб.
Похожие товары


