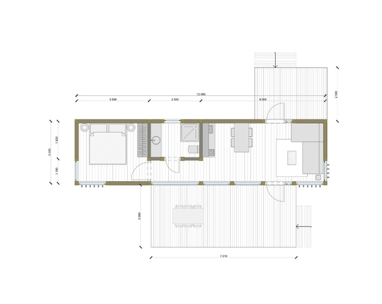
Сегмент Дом Modul.F.38.СП
Дом состоит из 2 модулей
тип конструкции Фахверк
Панорамное остекление
тип конструкции Фахверк
Панорамное остекление
Производитель: SegmentDom
2 432 000 руб.
Похожие товары
