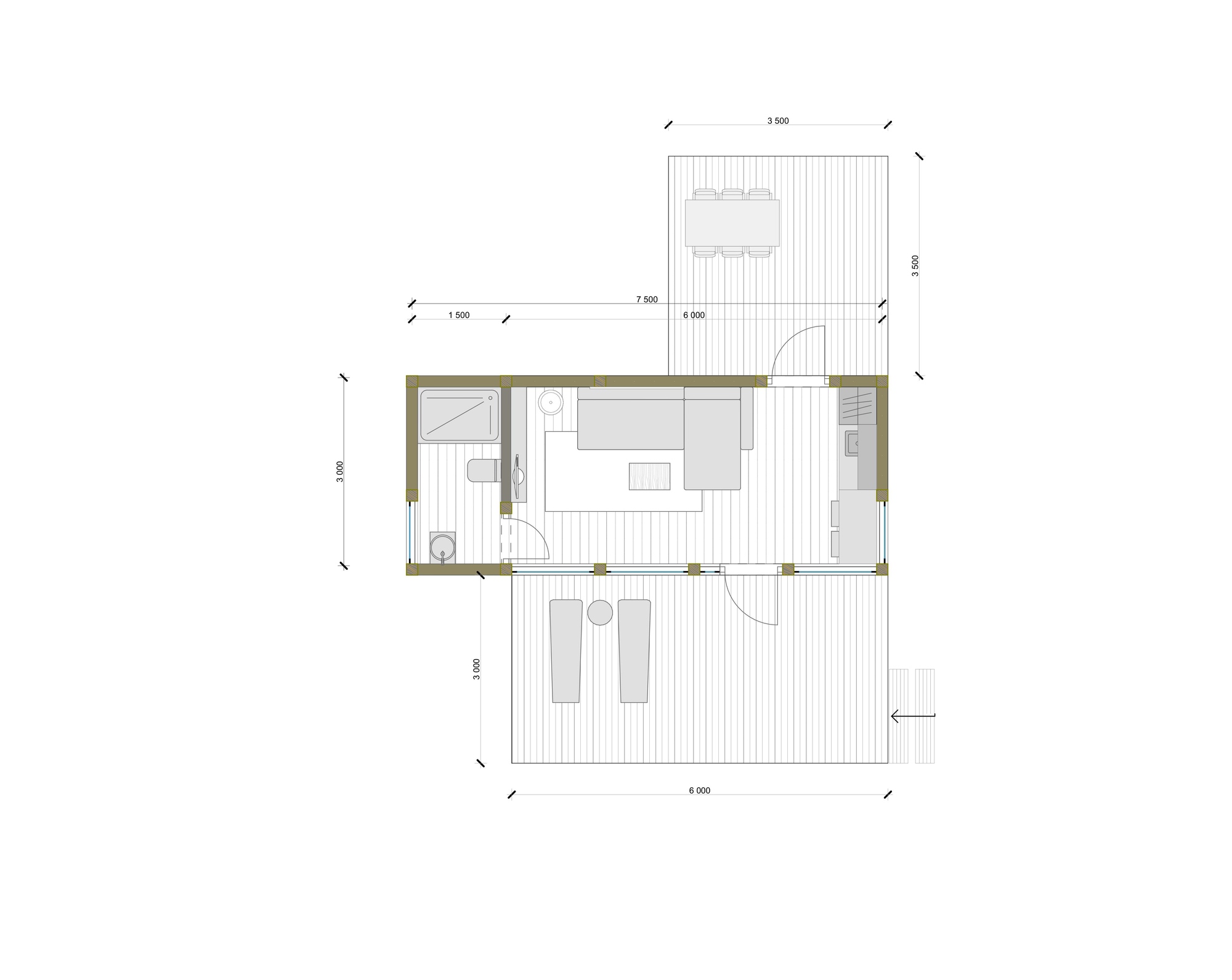
Сегмент Дом Modul.F.24.St
Дом состоит из 1 модуля
тип конструкции Фахверк
Панорамное остекление
тип конструкции Фахверк
Панорамное остекление
Производитель: SegmentDom
2 352 000 руб.
Похожие товары


