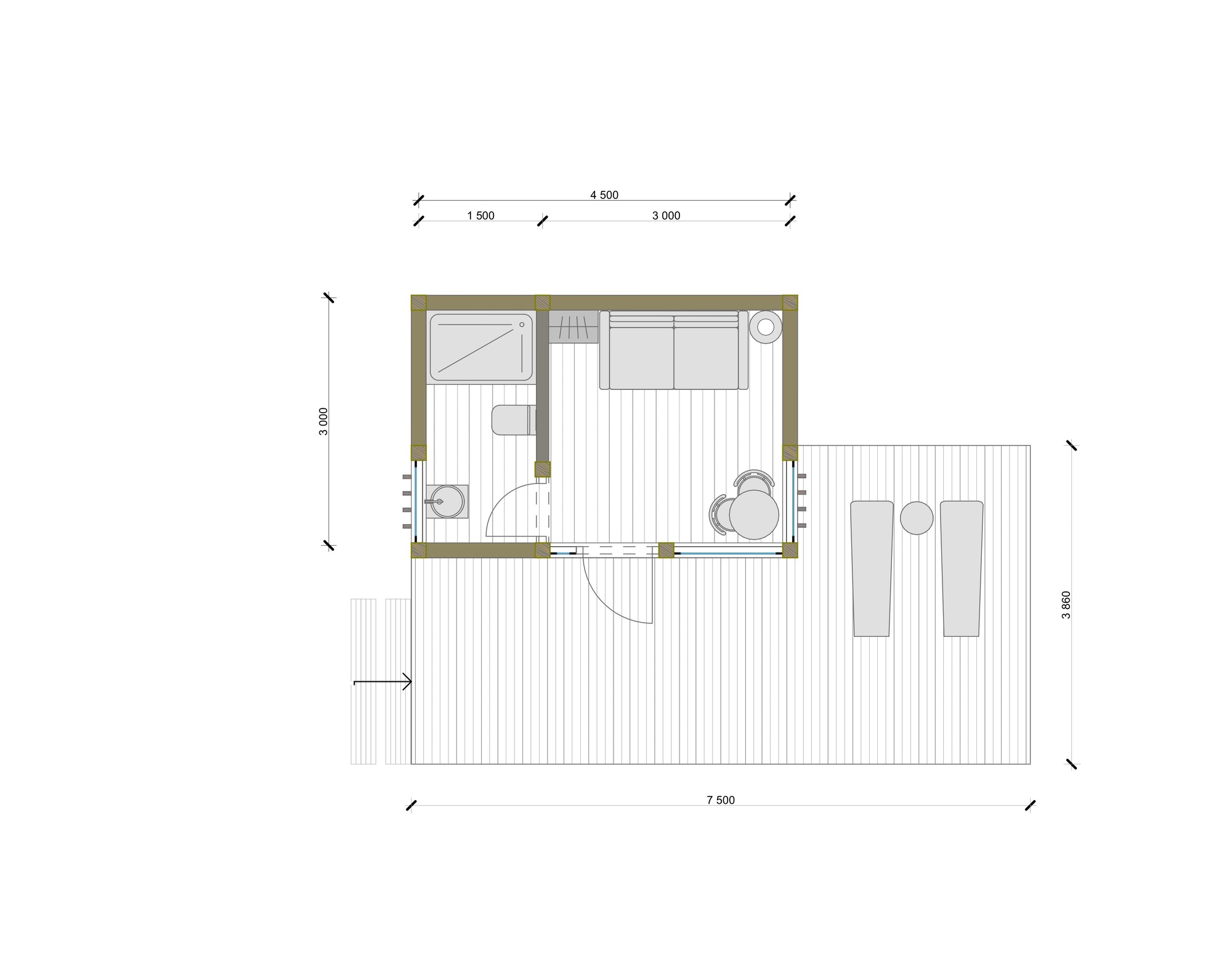
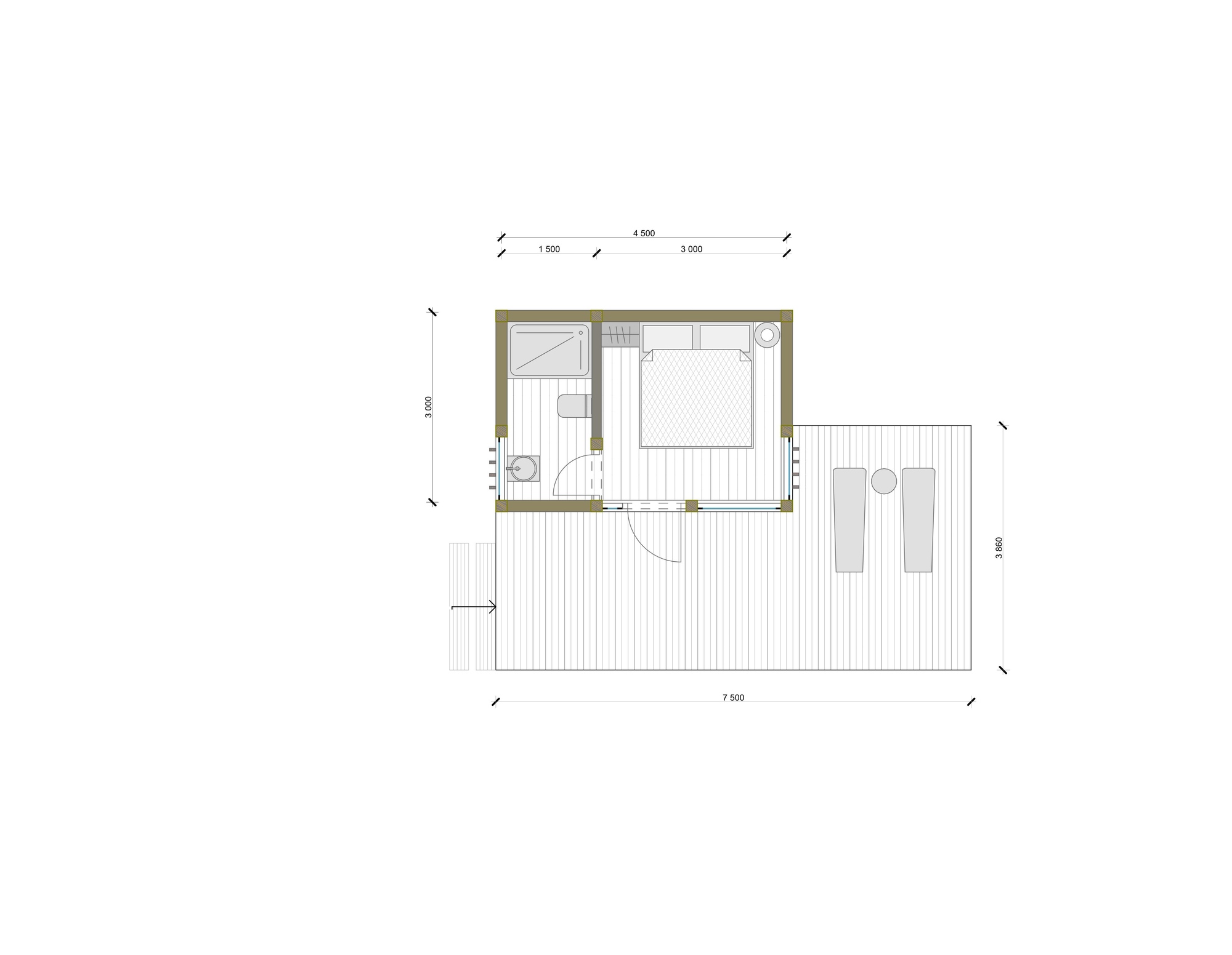
Сегмент Дом Modul.F.15
Дом состоит из 1 модуля
тип конструкции Фахверк
Панорамное остекление
тип конструкции Фахверк
Панорамное остекление
Производитель: SegmentDom
1 458 000 руб.
Основа конструкции наших Модулей - Брус сечением 180х180 из Термодерева,
собранный в надёжный силовой каркас по типу Фахверк
Настоящая модель имеет просторную Студию, полноценный Санузел с просторной Душевой.
Все наши Модульные Дома имеют возможность расширения - "Растущий Дом",
Вы можете докупать модули и Увеличивать площадь своего Дома в любое время, когда возникнет такая потребность и возможность.
Идеально подходит;
- Первый Дом, к которому в дальнейшем можно присоединять дополнительные модули, расширяя свой Дом.
- Дом - Дача Выходного дня
- Гостевой Дом
- Стандартный номер для Глэпминга, Отеля, Санатория, Базы отдыха
Похожие товары


